The Paddocks - Passive Solar Home in Herne Hill

 
 
Horrocks Residence rear view of house.
 
 
 

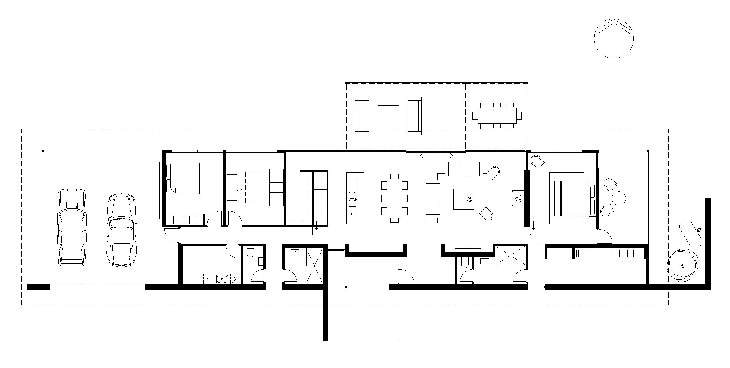
This beautiful passive solar home was designed for a 14 acre horse property in Herne Hill.

A dramatic skillion roof floats above the pavilion below, making a strong visual statement, and shading external walls in summer. The south elevation is protected from prevailing winds by a masonry wall. This provides privacy from neighbours and the nearby road. It also provides good thermal mass to improve energy efficiency.

The north elevation opens up to overlook the gardens and horse paddocks. Extensive glazing ensures excellent natural light and passive solar gain in winter.

A solar pergola fitted with motorised louvres provides year-round comfort and enjoyment of the outdoor living/ dining areas. Adjustable blades can be closed to provide shade in summer and protection from rain or opened up to enjoy sunshine in fine winter weather.


 
 

Click on an image to see the full view