The Deck - Holiday House in Margaret River

 
 
The Deck Margaret River holiday home rear view.
 
 
 

This holiday house is situated in the heart of Margaret River next to Cape Mentelle WINERY.

The house has a simple, contemporary aesthetic appropriate to its rural location. Orientation maximises passive solar gain in winter, minimises impact on the existing topography and takes advantage of the spectacular views over the surrounding landscape and bush reserve to the north west.

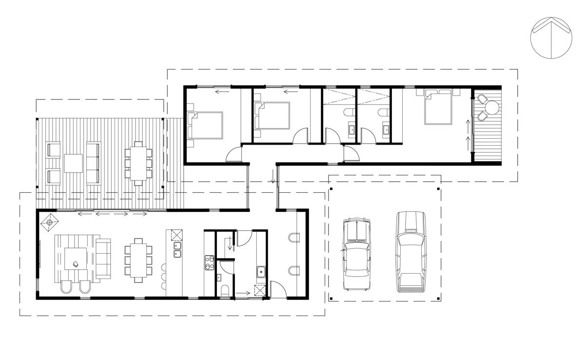
The large, covered, north facing deck is the heart of the house. It provides a sheltered outdoor living/ dining area that works as an extension to the indoor living/ dining area. Indoor & outdoor spaces are connected through large stacking sliding doors.

A smaller, east facing deck provides a private place to sit off the master suite.

The Deck is available for holiday leasing on www.housedownsouth.com.au


"Coveney Browne Design were so easy to deal with and readily available to answer our many questions and queries during the design process for our new house. They gave us priceless advice on often neglected details such as room proportion and space planning, size and spacing of windows to maximise views and minimise heat loss, orientation and aspect to offer solar and wind protection, and the efficient use of prevailing breezes to cool and ventilate the internal spaces making the house energy efficient at the same time. All this contributed to a "feel good" factor about the house that makes you want to spend time in it. Just what we wanted."

Adrian & Anne

 
 

Click on an image to see the full view